


Development Land in Wellpark Road for Sale - £350,000
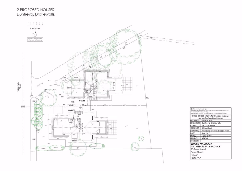
TWO BUILDING PLOTS IN POPULAR LOCATION CLOSE TO AMENITIES We are pleased to offer two adjacent building plots located in the stunning Tamar Valley. Both plots have planning permission for a four double bedroom detached home with double garage extending to approximately 171 sq mts (1840...
Development Land in Wellpark Road for Sale - £350,000
Description
TWO BUILDING PLOTS IN POPULAR LOCATION CLOSE TO AMENITIES We are pleased to offer two adjacent building plots located in the stunning Tamar Valley. Both plots have planning permission for a four double bedroom detached home with double garage extending to approximately 171 sq mts (1840...
Contact Agent
Smart Picks — Professionals Relevant to This Land
Based on this property's key features, here are the specialists you may want to consult as part of your due diligence: land agents, rics surveyors, rural solicitors and planning consultants.

Land Agents
Essential for navigating the land market, finding buyers, and securing the best price.

RICS Surveyors
High-value property (£350K+) requires professional valuation for accurate pricing and due diligence.

Rural Solicitors
Significant investment (£350K+) requires legal expertise for conveyancing, title checks, and transaction security.

Planning Consultants
Planning-sensitive site needs expert guidance for applications and development strategy.
Location
Wellpark Road